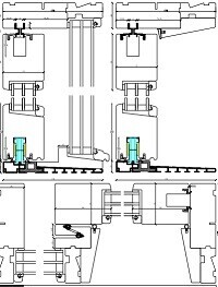
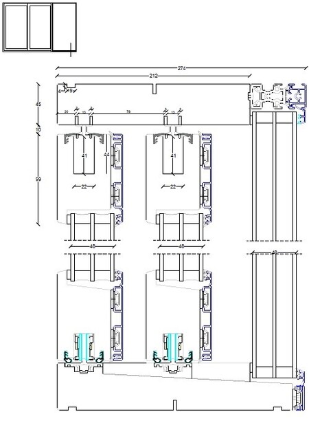
Skydedør - 2-fags SNIT IDENT: Skydedør træ/alu - 2-fags Snitnavn: Skydedør træ/alu PDF format 1:2: DOWNLOADDWG format : DOWNLOAD SNIT IDENT: Skydedør træ - 2-fags Snitnavn: Skydedør træPDF format 1:2: DOWNLOADDWG format : DOWNLOAD Skydedør - 3-fags SNIT IDENT: Skydedør træ/alu - 3-fags Snitnavn: Skydedør træ/alu - Snit ved yderste gående rammePDF format 1:2: DOWNLOADDWG format : DOWNLOAD SNIT IDENT: Skydedør træ/alu - 3-fags Snitnavn: Skydedør træ/alu - Snit ved gående ramme/gående rammePDF format 1:2: DOWNLOADDWG format : DOWNLOAD SNIT IDENT: Skydedør træ/alu - 3-fags Snitnavn: Skydedør træ/alu - Snit ved gående ramme/Fast glasPDF format 1:2: DOWNLOADDWG format : DOWNLOAD SNIT IDENT: Skydedør træ/alu - 3-fags Snitnavn: Skydedør træ/alu - Snit ved gående ramme/gående rammePDF format 1:2: DOWNLOADDWG format : DOWNLOAD SNIT IDENT: Skydedør træ/alu - 3-fags Snitnavn: Skydedør træ/alu - Snit ved gående ramme/fast karmPDF format 1:2: DOWNLOADDWG format : DOWNLOAD